To Ourselves and The Futures They Serve

The home has traditionally been the place of a sense of personal ownership and retreat. Whether you’re a child in a bedroom, a student in a dorm, an adult(s) in an apartment, or a family in a house - Inside of the walls of a dwelling have such significance and mental safety. With the pandemic much of the outside world that historically would be left on the doormat found itself inside of the house in a blurring of environments through remote working and other daily functions transitioning to on a screen rather than in person. Work now has a space in our homes and the large and unprecedented amounts of stress and uncertainty in the world seem to seep into our lives constantly. The mental manifestation of the sanctuary has become lost or diminished and a renewed focus on the spaces we live in has increased.

How do we serve our dwellings? How do our dwellings serve us?

A model of housing around the ideas of Social-Ecological Design will serve as the basis for a cohousing project of living within and amongst natural and living elements as to facilitate a healthier standard for living.

Research

Much of the research and interest in architecture with highly integrated ecology begins with Bengt Warne, a Swedish architect who is credited with beginning the Naturhus movement. This movement manifests itself in the built world as a house inside of a greenhouse where waste is minimal and production of a happier and healthier living style is maximized, solely around the idea of bringing nature into our daily lives. His ideas around Naturhus have manifested themselves in a growing number of homes in the Scandinavian countries and can best be seen in season 1, episode 1 of Apple TV+’s original show Home. What Warne was observing is that plants, just like humans, have a circadian rhythm. And when both plant and human circadian rhythms are observed and mapped out there are many shared attributes about the two. Thus the hypothesis for this project and ongoing investigations are a model of housing in which both plants and humans share spaces within the home in order to facilitate a healthier standard for living.

What do the spaces within the home look like when the ideas of Naturhus are applied to them?

Below, along with a photo of Begnt Warne and two examples of naturhus influenced homes, are a series of vignettes that attempt to solve the question posed above, and a first pass design of a cohousing model comprised of two units. The research below, research on the naturhus movement, plants, horticultural therapy, biophilia, ecology, sustainability, and broader cohousing research completed by the whole thesis research studio led to the final design and spacial investigations presented later.

Site

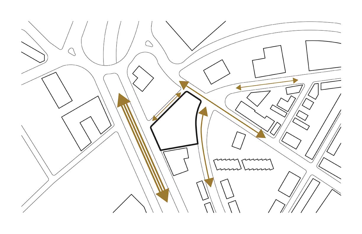
The site for the thesis design is located on the edge of the Charlestown neighborhood in Boston, MA. A major vehicular artery borders the site to the West with Route 93, a raised highway, just off in the distance. The site acts as a gateway to the historic and settled neighborhood of Charlestown. Situating a multi-family housing design on this site wouldn’t be too large of a task if the considerations of the health, happiness, and overall well-being of both the humans and the ecology of the site wasn’t so integral to the ideas and motivations. Attempts to create a neighborhood-like atmosphere while also sheltering the community from the loud and fast pace of the traffic can be seen below.

Site Design

Design Development

Understanding the special qualities of a high-density development while giving ample opportunity for ecological interventions became a challenge. Ultimately sun and shade became a driving parameter in massing and planning. Multiple attempts to find the best proportions to satisfy both the communal aspects of humans and natural needs of plants resulting in box-like housing structures with integrated greenhouse extensions that undulate into pinch points and clearings. Materials and extensions of the façade beyond the walls of the house became and experiment and child-like play in forms and functions. Materials were contemplated and selected based off of durability, compatibility with plants’ needs, and aesthetic compliments and contrasts with plants.

Final Design

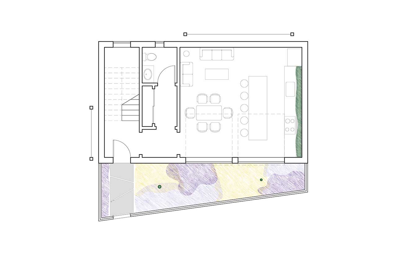
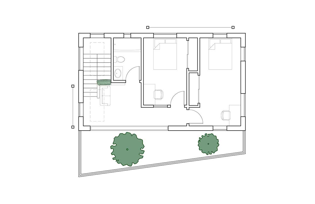
The result of the two semesters of research and design exploration resulted in a 25-unit cohousing development. The three distinct unit types are derived from siting considerations in respect to the integrated ecology. The Greenhouse extensions are oriented South in order to provide ideal conditions for the plants inside and outside of the dwellings. The dwellings are situated on the site in order to create a neighborhood like atmosphere and communal spaces shared by humans and plants alike. Ultimately a decision to raise the site up 6 feet was made for two reasons; to divide the community from the vehicular traffic to the West, and to ensure a longer lifespan for the dwellings from future sea level rise and flooding projected for the area. Plants are places along the site based off of their tolerance to salt because of how roads are conditioned during winter storms and increased soil salient quantity from sea level rise. The inwardness of the dwellings seen in plan is balanced by the outwardness of them in section. Considerations that were determined important during research, like sun and shade, informed a large majority of the design strategies seen below.

Other Considerations

Below are charts of the plants selected for the project, the first two containing exterior space plants and the latter two containing interior space plants. Below a photo of each plant is a block that corresponds with the sun necessary to ensure a happy and healthy plant and a bar that corresponds to the seasonal and usually visual interest of the plant. The colors of the block and bar correspond to the colors used in the site plan and floor plans above. The landscaping of the site and greenhouses are loosely based off of the work of Gertrude Jekyll and Piet Oudolf. As a result of the design integrated greenhouse, a passive heating a cooling strategy can be used in the dwellings to decrease need for mechanical systems and increase the senses of the residents in relationship to the integrated ecologies.

Thank You

A first and very important thank you to Kyle Barker and his guidance during both thesis research and design.

Thank you to the amazing and insightful jury panel; Chana Haouzi, Kalamu Kieta, Ian Miley, Armando Plata, and Rami el Samahy.

Thank you to the smart, inspiring, and insightful studio mates and friends who were are a part of this journey every day; Angel, Emily, Emma, Jennéa, Jill, John, Julia, Matt, Mitch, Natalie, and Xiaobei

Thank you to the numerous professors and professionals at Northeastern University that helped me see the potential in myself and gave me the large breadth of knowldge and tools that contributed to this project. This includes Kate Kennen, Scott Bishop, David Fannon, and Michelle Laboy.